Im vergangenen Jahr durften wir an diesem Standort bereits eine temporäre Turnhalle erstellen, nun folgen zwei neue Schulhäuser, bei welchen wir für den Holzbau zuständig sind.
Der dreigeschossige Ersatzneubau des Schulhauses Triemli kommt hinter dem klassizistischen Bau der Musikschule zu stehen. Dieser Neubau vereint in Zukunft Kindergarten, Musik- und Primarschule, Mensa sowie Sport.
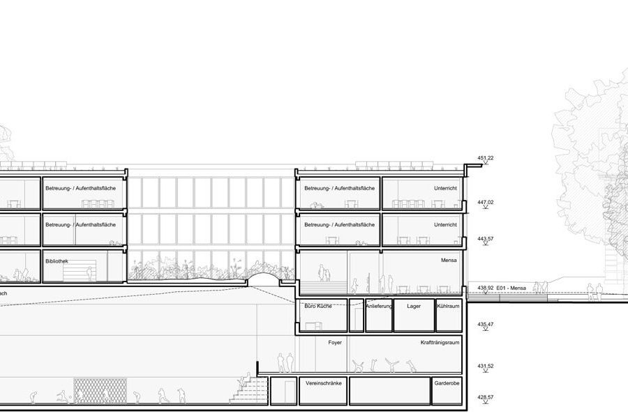
Der Erweiterungsbau In der Ey liegt auf dem unteren Niveau der Anlage, angrenzend an das Schulgebäude In der Ey aus dem Jahr 1935. Dieser Erweiterungsbau dient vorwiegend der Primarschule. Er wird zwölf Klassenzimmer beinhalten, Besprechungsräume und Büros sowie grosszügige Seminar- und Werkräume. Mitten durch das Gebäude verläuft die Erschliessungszone, die gleichzeitig ein wichtiger Aufenthalts- und Kommunikationsraum ist.
Architektur: Bollhalder Walser Architektur
Landschaftsarchitektur: ASP Landschaftsarchitekten AG
Visualisierungen & Pläne: Bollhalder Walser Architektur








